ANNUPURI RESIDENCE

ANNUPURI RESIDENCE - HOKKAIDO, JAPAN

final ext snow 1.jpg
final exterior snwo.jpg
fin al 1.jpg
FINAL LIVING 1.jpg
FINAL LIVING 2.jpg
FINAL MASTER.jpg
FINAL TV.jpg
FINAL KIDS 3.jpg
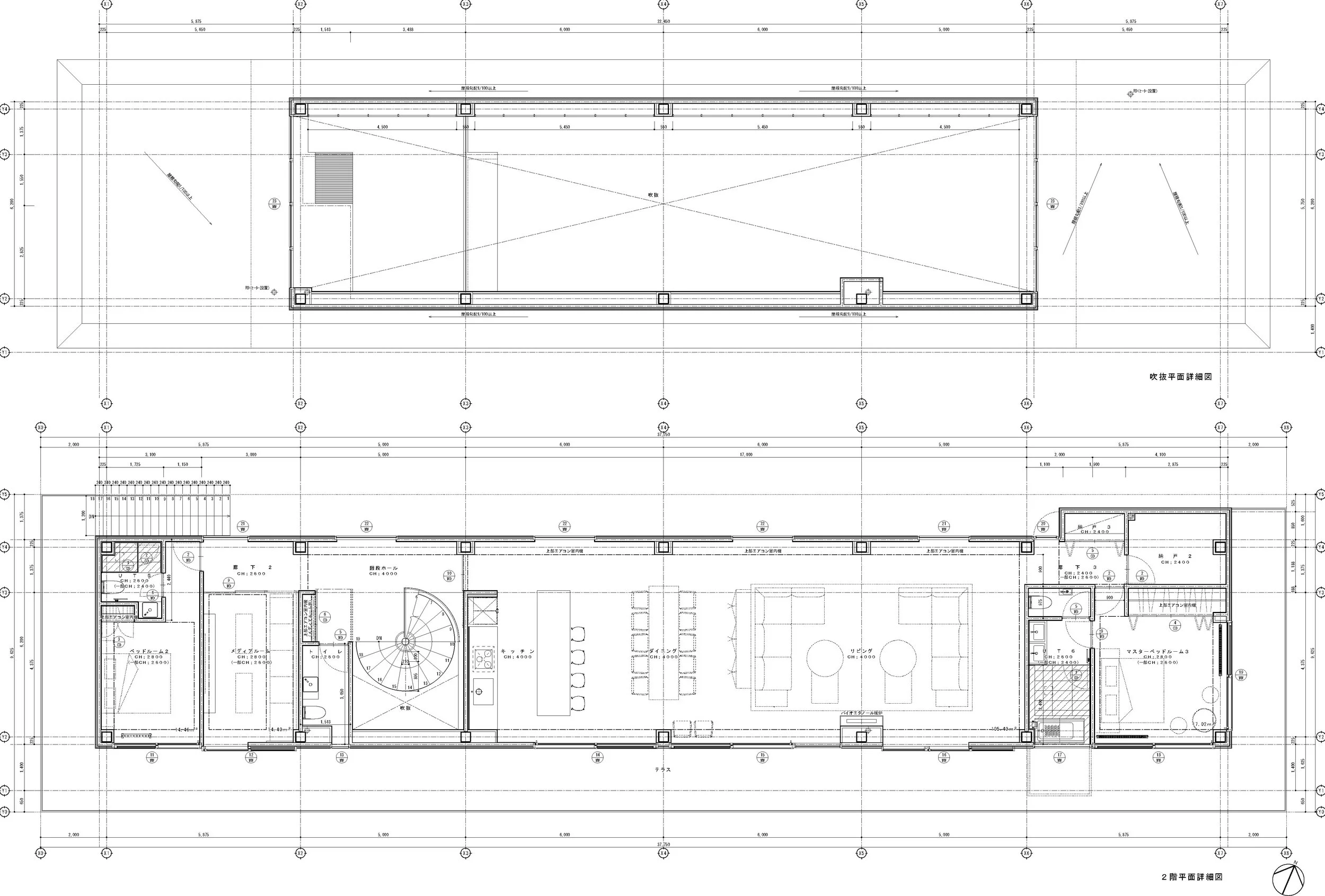
plan.jpg